| 物件名 |
横山町<本格和風住宅> |
| 価格 |
840.0 万円 |
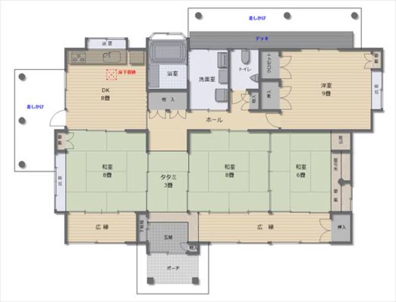
| 間取り |
4LDK+広縁 |
| 駐車場 |
有り |
| 物件種別 |
住宅 |
| 構造 |
木造 |
| 屋根 |
瓦 |
| 階数 |
平屋建て |
| 土地面積(m²) |
1,159.82 m² |
| 土地面積(坪) |
350.84 坪 |
| 床面積(m²) |
135.11 m² |
| 床面積(坪) |
40.87 坪 |
| 建ぺい率 |
70 % |
| 容積率 |
400 % |
| 土地権利 |
所有権 |
| 地目 |
宅地 |
| 都市計画 |
未線引区域 |
| 用途地域 |
無指定 |
| 法令上の制限 |
道路位置指定の許可あり |
| 築年月 |
平成10年12月 (築27年) |
| 現況 |
空家 |
| 取引態様 |
媒介 |
| 備考 |
・道路位置指定 第30ー14号
(指定日):H30年10月31日
・単独浄化槽、ガス給湯器
●別棟:現況・117.08㎡、S22年8月築、H11年変更、増築(未登記増築:約6.31㎡)
●倉庫:79.38㎡、S52年8月築、H15年6月増築・軽量鉄骨造平家建
・航空法、急傾斜地(崩壊危険区域) |
| 所在地 |
鹿児島県鹿屋市横山町2255番2、他4筆 |
| 小学校区 |
大姶良小学校 (1,520 m) |
| 中学校区 |
大姶良中学校 (1,980 m) |
| 交通 |
横山町バス停歩5分 |
| 接道状況 |
4.50m道路位置指定 |